Навигация
Главная
Основной сайт
Поиск
Ski-Doo
Arctic Cat
Yamaha
Can-Am
Honda
Sea-Doo
Kawasaki
Suzuki
Polaris
BRP Lynx
Harley Davidson
Подобрать запчасти
Главная
Harley Davidson
Мотоциклы
2020
FLHTK SHRINE 1KNF ULTRA LIMITED SHRINE EDITION
Запчасти для Harley Davidson FLHTK SHRINE 1KNF ULTRA LIMITED SHRINE EDITION 2020 г.
AIR CLEANER
ALTERNATOR AND REGULATOR
ANTENNAS
AUXILIARY/FOG LAMPS AND TURN SIGNALS, FRONT - FLHTK
BATTERY
BELT, CHAIN AND SPROCKETS
BRAKE CALIPER, FRONT
BRAKE CALIPER, REAR
BRAKE CONTROL, FRONT
BRAKE CONTROL, REAR
BRAKE LINES AND MODULE, REAR - ABS
BRAKE LINES, FRONT - ABS
CAMSHAFTS AND CAMSHAFT COVER
CLUTCH
CLUTCH CONTROL
CONSOLE, FUEL TANK - FLHT, FLHTK, FLHX, FLHXS, FLTRK, FLTRX AND FLTRXS
COOLANT DISTRIBUTION - TWIN-COOLED™
COOLING SYSTEM, ENGINE, TWIN-COOLED™
COVERS AND AIR DEFLECTORS
CRANKCASE
CYLINDERS, HEADS AND VALVES
ELECTRONIC CONTROL MODULE (ECM) AND COIL
ENGINE ASSEMBLY - MILWAUKEE-EIGHT® 114 ENGINE
ENGINE MOUNTS AND STABILIZER LINK
EVAPORATIVE EMISSIONS COMPONENTS
EXHAUST SYSTEM
FAIRING, INNER - FLHT, FLHTK, FLHX AND FLHXS
FAIRING, INNER - FLHT, FLHTK, FLHX AND FLHXS (3 OF 3)
FAIRING, LOWERS, TWIN-COOLED™ - FLHTK, FLTRK
FENDERS, FRONT
FENDERS, REAR
FOOTBOARDS AND FOOTPEGS, PASSENGER
FOOTBOARDS, OPERATOR
FORK BRACKETS, FRONT
FORK, FRONT
FRAME AND FORK, REAR AND TOUR-PAK SUPPORT
FRAME AND JIFFY STAND
FUEL PUMP - FLHT, FLHTK, FLHX, FLHXS, FLTRK, FLTRX AND FLTRXS
FUEL TANK - FLHT, FLHTK, FLHX, FLHXS, FLTRK, FLTRX AND FLTRXS
GUARDS, SADDLEBAG
HANDLEBAR
HORN
INDUCTION MODULE, FUEL
INSTRUMENTS - FLHT, FLHTK, FLHX AND FLHXS
INTERCOM CONTROL POD
LABELS
LAMPS AND SPEAKER HOUSINGS, ULTRA TOUR-PAK
LICENSE PLATE BRACKETS
LOOSE PARTS
MIRRORS
PISTONS AND FLYWHEEL ASSEMBLY - MILWAUKEE-EIGHT® 114 ENGINE
PRIMARY HOUSING
RADIATOR, COOLANT HOSES AND BOTTLE - TWIN-COOLED™
ROCKER ARM ASSEMBLY AND PUSHRODS
SADDLEBAGS
SEATS
SENSORS AND SWITCHES, ENGINE
SHIFTER, GEAR
SHOCK ABSORBERS, REAR
SOUND SYSTEM - FLHTK, FLHX AND FLHXS
STARTER MOTOR
SWITCHES
SWITCHES, HANDLEBAR, LEFT - EXCEPT FLHRXS
SWITCHES, HANDLEBAR, RIGHT - EXCEPT FLHRXS
TAIL LAMP
THROTTLE CONTROL
TOUR-PAK (BOTTOM)
TOUR-PAK (COVER)
TRANSMISSION BEARINGS AND COVERS
TRANSMISSION GEARS
TRANSMISSION HOUSING, COVER AND OIL PAN
WHEELS, FRONT, CAST
WHEELS, REAR
WINDSHIELD, FAIRING AND HEADLAMP - FLHT, FLHTK, FLHX AND FLHXS
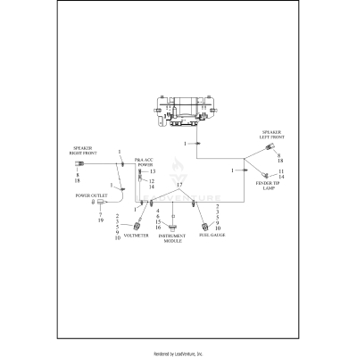
WIRING HARNESS, FAIRING - FLHTK
WIRING HARNESS, FAIRING - FLHTK (2 OF 2)
WIRING HARNESS, MAIN - FLHTK
WIRING HARNESS, MAIN - FLHTK (10 OF 10)
WIRING HARNESS, MAIN - FLHTK (2 OF 10)
WIRING HARNESS, MAIN - FLHTK (3 OF 10)
WIRING HARNESS, MAIN - FLHTK (4 OF 10)
WIRING HARNESS, MAIN - FLHTK (5 OF 10)
WIRING HARNESS, MAIN - FLHTK (6 OF 10)
WIRING HARNESS, MAIN - FLHTK (7 OF 10)
WIRING HARNESS, MAIN - FLHTK (8 OF 10)
WIRING HARNESS, MAIN - FLHTK (9 OF 10)